Edificio en venta situado al lado de la entrada al Centro Comercial Vialia y estación intermodal de trenes y autobuses
Edificio con fachada en piedra, con un total de 1052m2 construidos y compuesto de dos sótanos a locales (en estado de abandono), planta baja a local comercial (actualmente uso café- bar en funcionamiento desde el año 1991) y tres plantas altas a uso residencial en estado de abandono. Se adjuntan planos de cada planta.
En planta sótano -2, local de 60m2.
Planta sótano -1: local de 194m2 y zona comunitaria con terraza cubierta de 60m2.
Planta baja con portal de entrada al edificio y local comercial de 150m2 alquilado desde 1991, con posibilidad de rescisión del mismo.
Planta primera: Vivienda de 180m2 con 5 dormitorios, dos baños y terraza cubierta de 20m2.
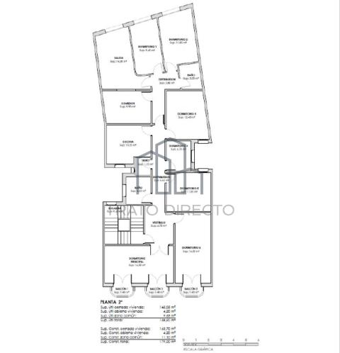
Planta segunda: Vivienda de 180m2 con 7 dormitorios y dos baños.
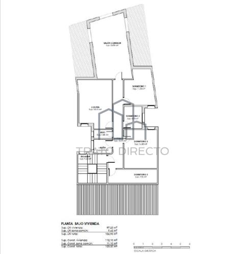
Bajo cubierta: Vivienda de 123m2 con 4 dormitorios y dos baños.
Características técnicas del edificio actual:
- Estructura forjados: Verticales paredes de carga; horizontales en plantas techo sótanos, ejecutada con losas de hormigón armado y en plantas altas realizada con vigas y forjados de madera.
- Cerramientos: Principal, muros de sillares de piedra y en planta alta con fábrica de ladrillo, revestido imitando sillares de piedra y sin cámara. En fachada posterior fábrica de termo arcilla.
- Acabado fachada: Piedra natural.
- Cubierta: Estructura de tijerales y correas de madera y material de cubrición inclinado a varias aguas con cubrición de teja cerámica plana. Reformada recientemente a fin de superar la IEE.
- Carpintería exterior: Madera maciza pintada con acristalamiento sencillo y contras de madera por el interior.
La edificación se encuentra dentro del Plan especial para la Protección del Ensanche Histórico el cual sustituirá, en su ámbito de aplicación, al Plan Especial y Catálogo Complementario de Conjuntos y Elementos a Conservar (PEEC), aprobado el 25 de octubre de 1990. Hasta la aprobación de este Plan Especial, se mantendrá la catalogación establecida en el PEEC, en cuanto a elementos catalogados y determinaciones de protección, sin perjuicio de su adaptación a la establecida en la LPCG, así como la Comisión del Plan Especial, que continuará desempeñando su función de acuerdo con su regulación específica; el Plan Especial, que continuará desempeñando su función de acuerdo con su rehabilitación y reestructuración del edificio existente, siendo autorizado con carácter general, y previo dictamen de la Comisión, el Plan Especial, que continuará desempeñando su función de acuerdo con su rehabilitación y reestructuración del edificio existente. Hasta la aprobación del nuevo Plan Especial, las obras correspondientes a ampliaciones y nuevas edificaciones en solares baldíos se regirán por lo dispuesto en el PEEC en las zonas donde estas se proyectaron; las obras de demolición solo se realizarán sobre ruinas declaradas a estos efectos, en De conformidad, cuando corresponda, con las disposiciones de la LPCG. A las unidades de actuación incluidas en el PEEC, con su estudio detallado aprobado definitivamente, les será de aplicación la planificación establecida en el PEEC para dichas unidades de actuación. La ordenanza de referencia, en general, será la Ordenanza U1 sobre Mantenimiento del edificio existente.
Una oportunidad de inversión en una ubicación única, en un edificio de 1940 que busca perdurar en la vida de los vigueses durante muchas décadas y que estamos seguros que así lo hará.
Características
- ReferenciaP004213
- Necesita reforma
- Antigüedad86 años
- Tipo de pisoEdificio completo
- Alturas del edificio5 plantas
- Cert. EnergéticaEn Trámite
- Superficie1052 m2
- Habitaciones16
- Baños7
- Calefacción
- Ascensor
- Garaje incluido
- Trastero
- Terraza
- Metros Terraza60 m2
- Tipo sueloMadera
- Tipo persianaContras de Madera
- OrientaciónEste-Oeste
- Luminoso
- Exterior
Calificación Energética
Certificación en proceso de tramitación.
Ubicación
Es un sitio ideal para mí
