Obra nueva en construcción en primera linea de Playa de Ladeira - Sabaris.
					Cuando aperturamos nuestra agencia hace 13 años un inversor británico nos señaló que lo que el buscaba debía tener 3 características: 
LOCALIZACIÓN, LOCALIZACIÓN y LOCALIZACIÓN. 
Si algo estábamos deseando ofreceros dentro del escaso mercado del Val Miñor, era la posibilidad de adquirir una propiedad que te permita disfrutar de todas las bondades de esta zona sin necesidad de mover tu vehículo. Es decir, que tú y tu hijos podáis ir a la playa caminando, acercaros al pueblo a comer o simplemente dar un agradable paseo a través del largo paseo que une Panxón con el Parador de Baiona. Todo ello, en alguna de estas tres viviendas de obra nueva en la tranquila Parroquia de Sabarís va a ser perfectamente posible. 
Nos referimos a 3 viviendas que forman parte de un conjunto de 5, iniciadas en 2010 y quedando pendiente de remate estas 3 que hoy ponemos a la venta. Muchas veces nos han preguntado por ellas y por ello estamos seguros que la puesta en marcha de esta nueva comercialización va a satisfacer a muchos de los que deseáis una vivienda unifamiliar en la zona. 
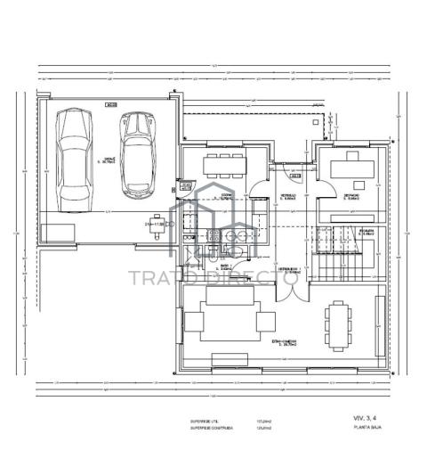
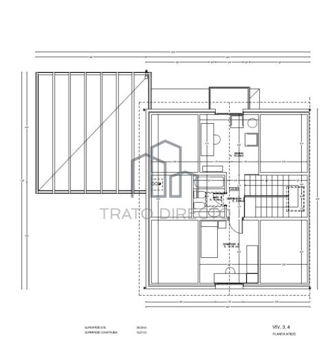
En general hablamos de tres viviendas que cuentan con una estructura similar, planta principal de aproximadamente 126m2 con cocina y salón comedor, además de garaje contiguo a la vivienda (parte adosada al vecino), planta primera de 106m2 a vivienda y bajo cubierta habitable de 46m2 aproximadamente a vivienda. **Nota: Adjuntamos planos de la vivienda nº 3 (a la venta también la 4 y la 5). 
Por plantas: 
	- Planta baja o principal: gran salón comedor con acceso a la parte amplia ajardinada, donde sería posible instalar una piscina. Cocina de 16m2, baño completo y una habitación que puede ser dormitorio, despacho o sala de juegos, entre otras opciones. Desde la cocina se accede directamente al garaje con capacidad para varios vehículos. 
	- Planta primera: Cuatro dormitorios y dos baños, si bien creemos, y nos encanta, en la posibilidad de reconvertir espacios y crear un buen dormitorio con su baño incorporado, vestidor y acceso a una agradable y soleada terraza. 
	- Planta segunda o bajo cubierta: espacio que cuenta con un baño y que puede entregarse dividido en dos dormitorios más o totalmente diáfano, según necesidades. 
Dado que el momento en el que se encuentra la obra es en construcción, también va a ser posible personalizar muchos de sus acabados para adaptarlos a tus gustos o necesidades y tenerla lista para entrar en pocos meses.
En cuanto al apartado de confort, todas las viviendas dispondrán de calefacción y agua caliente a través de un sistema de areotermia, una de las opciones más sostenibles y eficientes del mercado. Energía limpia, diseñada para aportar calefacción en invierno, refrigeración en verano y agua caliente todo el año extrayendo la energía ambiental contenida en el aire mediante un ciclo termodinámico. 
Llámanos y concertamos una visita en la que estaremos encantados de ampliar toda la información que necesites.
				
Características
- ReferenciaC000609
- Obra nueva
- AntigüedadMenos de 1 año
- Tipo de casaAdosado
- Alturas del edificio3 plantas
- Adosada
- MaterialPiedra
- Cert. EnergéticaEn Trámite
- Superficie280 m2
- Habitaciones7
- Baños4
- Calefacción
- Tipo calefacciónAerotermia
- Garaje incluido
- Plazas de garaje2
- Trastero
- Terraza
- Metros Terraza30 m2
- Finca
- Metros Finca477 m2
- Tipo fincaLlana
- Tipo persianaAluminio
- OrientaciónFrente Oeste
- Luminoso
- Exterior
- Admite mascotas
- Vistas
- Doble cristal
- Puerta Blindada
- Videoportero
- Centro ciudad2 km
- Alcantarillado
- Agua de traida
- Tipo de pozoNo tiene
- Tipo de cierrePiedra
- Tipo de accesoBueno
- Armarios empotrados
Calificación Energética
Certificación en proceso de tramitación. 
						Ubicación
Es un sitio ideal para mí

 
												 
												 
												 
												 
												 
												 
												 
												 
												 
												 
												 
												 
												 
												 
												 
												 
												 
												 
												 
												 
												 
												 
												 
												 
												 
												 
												 
												 
												 
												 
												 
												 
												 
												 
												 
												 
												 
												 
												 
												 
												 
												 
												 
												 
												 
												